1¡¢Ç° ÑÔ
ÓÉÓÚĿǰagºÍ¼ÇÐÐÒµÖУ¬ÊÕË®¾®Ö÷ÒªÒÔשÆöΪÖ÷£¬ÆÕͨʵÐÄÕ³ÍÁשÓÃÁ¿½Ï´ó£¬ÎªÁ˹᳹¹ú¼Ò»·±£Ê©¹¤µÄÄ¿±ê£¬ÒÔ¼°½¨ÖþÒµ½ûÏÞʹÓÃÆÕͨʵÐÄÕ³ÍÁשµÄ֪ͨ£¬ÎÒ¹«Ë¾Ô¤ÖƳ§¿Æ¼¼ÈËÔ±½¨Á¢QCС×飬ÀÖ³ÉÑÐÖÆ³öÔ¤ÖÆ»ìÄýÍÁÊÕË®¾®À´Ìæ´ú¹Å°åÕ³ÍÁשÆöÖþ£¬±¾¹¤·¨Õë¶ÔÔ¤ÖÆ»ìÄýÍÁÊÕË®¾®µÄÊ©¹¤¶øÌåÀý£¬ÊÊÓÃÓÚËùÓÐÎÞÌØÊâÒªÇóµÄagºÍ¼ÇÓêË®¹¤³ÌÊÕË®¾®µÄÊ©¹¤¡£
2¡¢¹¤ ·¨ ÌØ µã
Óë¹Å°åµÄʵÐÄÕ³ÍÁשÆöÖþÊÕË®¾®Ïà±È£¬Ê¹ÓÃÔ¤ÖÆ»ìÄýÍÁÊÕË®¾®Ê©¹¤¾ßÓÐÒÔÏÂÓÅÊÆ£º
2.1¡¢¿ÉÈ¡´úʵÐÄÕ³ÍÁÉÕ½áש£¬Ê©¹¤»·±££¬ÇкϹú¼Ò½ûÏÞʵÐÄÕ³ÍÁשÕþ²ß£»
2.2¡¢¾®ÊÒµÄǽ±Ú¸üֱ˳¡¢ÃÀ¹Û£¬²»ÊܲÙ×÷¹¤ÈËˮƽӰÏ죻
2.3¡¢±ÈÆðשÆö£¬×°ÖÃËٶȸü¿ì£¬×°Öúó¿ÉÒÔÖ±½Ó»ØÌ´ó´óÌá¸ßÊ©¹¤¹¤ÆÚ¡£
2.4¡¢ÕûÌåÐԺ㬷ÀÉøÂ©ÐÔ¸ü¸ß¡£
3¡¢¹¤ÒÕÔÀí
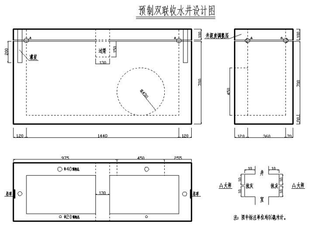
Ô¤ÖÆ»ìÄýÍÁÊÕË®¾®³ß´ç²ÎÕÕ¡¶agºÍ¼ÇÅÅË®¹ÜµÀ¹¤³Ì¼°Á¥ÊôÉèÊ©¡·Í¼¼¯£¬È·¶¨ÎªÒÔÏÂͼʾ³ß´ç£¨ÒÔË«ÁªÊÕË®¾®³ß´çΪÀý£©£¬ÊÕË®¾®½ÓÄɹ¤³§¶¨ÐÍÄ£¾ßÔ¤ÖÆ£¬ÏÖ³¡¾ß±¸×°ÖÃÌõ¼þºó£¬ÔËÊä¡¢×°Öá£ÊÕË®¾®Ô¤ÖÆ×÷
ҵʱ£¬¾®±Ú¡¢¾®µ×ÄÚÓæÕ8¸Ö½î²¼ÉèÍøÆ¬£¬»ìÄýÍÁ½ÓÄÉC30±êºÅ£¬Ç¿¶ÈÔ¶Ô¶Áè¼ÝÆÕͨճÍÁשµÄÇ¿¶ÈÒªÇó¡£
Ô¤ÖÆÊÕË®¾®Éè¼ÆÍ¼£¨Ë«Áª£©

Ô¤ÖÆÊÕË®¾®³ß´ç²ÎÊý£¨Ë«Áª£©
Æ½Ãæ³ß´ç£º
³¤£¨mm£© | ¿í£¨mm£© | ±Úºñ1£¨mm£© | ±Úºñ2£¨mm£© | ¾®Êҳߴ磨mm£© |
1680 | 550 | 120 | 70 | 1440*360 |
ÆäËû³ß´ç£º
¾®ÊÒÉî¶È | ¾®µ×ºñ¶È£¨mm£© | Ô¤Áô¿×£¨mm£© | Ò»Ì×ÖØÁ¿£¨kg£© |
¿Éµ÷ÖÁÉè¼ÆÉî¶È | 80 | ¦Õ450 | 779 |
Ô¤ÖÆÊÕË®¾®Ð§¹ûͼ

4¡¢¹¤ÒÕÁ÷³Ì¼°²Ù×÷Òªµã
4.1 Ô¤ÖÆ»ìÄýÍÁÊÕË®¾®Ê©¹¤µÄ¹¤ÒÕÁ÷³ÌͼÈçÏ£º
ÊÕË®¾®Ô¤ÖÆ¡¢×°Öù¤ÒÕÁ÷³Ì

4.2²Ù×÷Òªµã
4.2.1 Ê©¹¤×¼±¸
4.2.1.1 Ô¤ÖÆ³§ÓëÏîÄ¿²¿Ïàͬ£¬È·¶¨ÊÕË®¾®ÊýÁ¿¡¢¹æ¸ñ¡¢¹¤ÆÚµÈ£¬ÊµÊ±×öºÃ×¼±¸ÊÂÇé¡£
4.2.2ÊÕË®¾®Ô¤ÖÆ×÷Òµ
4.2.2.1Ñϸñƾ¾ÝÉè¼ÆÍ¼Ö½¼Ó¹¤¸ÖÄ£°å£¬Ä£°å½Ó·ìÒªÑÏÃÜ£¬²»Â©½¬£¬Ö§³ÅÒªÀι̣¬°ü¹ÜÎȶ¨ÐΡ£
4.2.2.2 ¸Ö½îÍøÆ¬µÄ°óÔúÒªÀι̣¬¼ä¾à¾ùÔÈ£¬¾®±ÚÓë¾®µ×Á¬³ÉÕûÌ壬¸Ö½îÄ©¶ËÒª´øÍä¹³¡£
4.2.2.3 ½ÓÄÉC30»ìÄýÍÁ½øÐн½Öþ£¬ÅäºÏ±ÈҪ׼ȷ£¬½½Öþǰ¼ì²éÔ¤Áô¿Õ¶´Î»ÖÃÊÇ·ñ׼ȷ¡¢Àι̣¬Õñµ·ÒªÃÜʵ¡£µØ°å½½ÖþÍê³É£¬´ý»ìÄýÍÁ³õÄýºó£¬°²ÅÅÄÚÄ££¬ÀιÌÀι̺󣬽½Öþ¾®±Ú»ìÄýÍÁ¡£
4.2.2.4 ÍÑģʱҪ°ü¹ÜÔ¤ÖÆ¾®Àâ½Ç²»ÊÜË𻵣¬³ÉÐ͵IJúƷҪʵʱÈ÷Ë®ÁýÕÖÑøÉú£¬ÖÜÆÚ²»ÉÙÓÚ14Ìì¡£
4.2.2.5 ¾®ÊÒÉî¶Èµ÷½â¿é£¬µ¥¶ÀÄ£¾ß½øÐÐÔ¤ÖÆ£¬Æ¾¾ÝÏÖ³¡Çé¿öÓë¾®ÊÒÅäÌ×ʹÓá£
4.2.2.6 ÍÑÄ£ºó£¬¶Ô³ÉÐ͵IJúÆ·³ß´ç½øÐмì²é£¬³ß´ç¼ì²é±ê×¼¼°ÒªÁìÈçÏ£º
Ïî Ä¿ | ÔÊÐíÆ«²î£¨mm£© | ¼ìÑéÒªÁì |
¾®ÊÒ³¤¶È | ¡À5 | ³ßÁ¿Á½¶Ë¼°Öв¿£¬È¡×î´óÖµ |
¾®ÊÒ¿í¶È | ¡À5 | ³ßÁ¿Á½¶Ë¼°Öв¿£¬È¡×î´óÖµ |
¾®±Úºñ¶È | ¡À5 | ³ßÁ¿Á½¶Ë¼°Öв¿£¬È¡×î´óÖµ |
Ô¤Áô¿Õ¶´Î»Öà | 5 | ³ßÁ¿ÖÐÏßλÖà |
¶Ô½ÇÏß | 10 | ³ßÁ¿Á½¸ö ¶Ô½ÇÏß |
4.2.3ÊÕË®¾®×°ÖÃ×÷Òµ
4.2.3.1ÊÕË®¾®»ù¿Ó¿ªÍÚ£ºÂ·»ùµ×ϲ㣨һ°ãΪ»ÒÍÁ£©Íê³Éºó£¬¾Í¿ÉÒÔÕÉÁ¿¶¨Î»ÊÕË®¾®µÄλÖ㬷ÅÏßλÖÃҪ׼ȷ¡£ÎªÁ˱ãÓÚ×°Ö㬻ù¿Ó¿ªÍÚ¿í¶ÈÒª½øÐÐ·Å¿í£¬¿¿Â·ÔµÊ¯Ò»²à·Å¿í¿í¶È²»Ð¡ÓÚ20ÀåÃס£»ù¿Ó¿ªÍÚµ½Î»ºó£¬ÒªÊµÊ±Çå³ýµô³¬³¤µÄÔ¤Áô¹Ü¹ÜÍ·£¬¹ÜÍ·Óë¾®ÊÒÏß¶ÔÆë¡£
4.2.3.2 ÊÕË®¾®»ù´¡½ÓÄÉËØÍÁº»ÊµºÍ15ÀåÃ×3£º7»ÒÍÁ£¬Ñ¹Êµ¶ÈÒªÇкϹ淶ҪÇ󣬻ÒÍÁÍâòҪƽÕû£¬ÎªÁË×°ÖÃÊÕË®¾®Ê±±ãÓÚµ÷½âÊÕË®¾®¶¥ÃæË®Æ½¶È£¬¿ÉÔÚ»ÒÍÁÉÏÆÌÉè3ÀåÃ×ϸɰ£¬Ï¸É°µÄ¶¥±ê¸ßΪԤÁô¹Üµ×ÃæÏòÏÂ10ÀåÃס£
4.2.3.3 ÊÕË®¾®×°ÖÃǰ׼±¸ÊÂÇéÍê³Éºó£¬½ÓÄÉËæ³µµõÔËÊäÖÁÊ©¹¤ÏÖ³¡£¬±ã¿ÉÅäºÏ½øÐÐ×°Öã¬ÊÕË®¾®ÉÏÓÐÔ¤Áôµõ»·£¬±ãÓÚÆðµõ×°Öã¬È˹¤ÅäºÏ£¬¿ÉÒ»´Î×°Öõ½Î»¡£ÊÕË®¾®Æ¾¾Ý¸÷×ÔλÖýÓÄÉÁ÷Ë®Ïß½øÐÐ×°Öá£
4.2.3.4ÊÕË®¾®×°ÖÃǰ£¬Ô¤Âñ¹ÜµÄ¹ÜͷҪʵʱ¾À¸ðÁ½È¦ÓÍÂ飬װÖõ½Î»ºó£¬ÓÍÂéÓë¾®±ÚÔ¤Áô¿×µÄ¿Õ϶£¬½ÓÄÉM15·Àˮɰ½¬½øÐÐÌî³ä£¬ÎªÁËÌî³ä¸üÃÜʵ£¬·Àˮɰ½¬ÖпɲôÈëË®ÄàÓÃÁ¿4%µÄÅòÕͼÁ¡£
4.2.3.5 Ô¤Áô¹ÜÓë¾®±Ú¿×¶´Ìî³äÍê³Éºó£¬½ÓÄÉϸÁ£Ê½»ìÄýÍÁÔÚ¾®µ×½½ÖþÁ÷Ë®²Û£¬Á÷Ë®²Û¶¥Ãæ²»µÃ¸ßÓÚÔ¤Áô¹Ü¹ÜÄÚµ×£¬²¢ÉèÖÃÒ»¶¨µÄÊÕË®ÆÂ¶È¡£
4.2.3.6Ô¤ÖÆ¾®µÄÉî¶È´ï²»µ½ÐèÇóʱ£¬¿É½ÓÄɾ®ÊÒÉî¶Èµ÷½â¿é£¬µ÷½â¿éµ×²ãÆÌÉè2ÀåÃ×ɰ½¬×øÊµ£¬µ÷½â¿éÔ¤Áô¿×Óë¾®ÊÒÔ¤Áô¿×¶ÔÆëºó£¬ÀïÃæ°²ÅÅ30ÀåÃ׳¤µÄ¦µ12µÄ¸Ö½î£¬²¢ÓÃɰ½¬Ìî³ä£¬Ê¹µ÷½â¿éÓë¾®ÊÒ½áºÏ³ÉÕûÌ壬µ÷½â¿éÓë¾®±ÚÁ¬½Ó´¦µÄÔ¤Áô°¼²Û£¬½ÓÄÉɰ½¬Ä¨Æ½¡£
4.2.3.7ÊÕË®¾®×°ÖÃÍê³Éºó£¬ÊµÊ±»ØÌî¾®ÖÜΧ£¬Òª·Ö²ãº»Êµ£¬Ñ¹Êµ¶ÈÂú×ãÃÅ·»ù´¡ÒªÇ󣬻ØÌîÍê³Éºó×°ÖÃÊÕË®¾®ÉϵÄ·ԵʯÒÔ¼°¾®¿ò¡¢¾®ó룬¾®±Ú×Ó×°ÖúóÒªÓëÁ½²àƽʯÆëƽ¡£
5 ÀͶ¯×éÖ¯
ÊÕË®¾®Ê©¹¤·ÖÎªÔ¤ÖÆ¡¢×°ÖÃÁ½¸ö×÷Òµ»·½Ú£¬ÈËÔ±Å䱸ÈçÏ£º
5.1Ô¤ÖÆ
5.1.1 ¸Ö½îÖÆ×÷¡¢Ä£°æ×°Öãº2ÈË
5.1.2 »ìÄýÍÁ½½Öþ¡¢ÑøÉúµÈ£º2ÈË
5.2×°ÖÃ
5.2.1»ù¿Ó¿ªÍÚ£º 1ÈË
5.2.2ÅäºÏ×°ÖᢹÜÍ·´¦ÀíµÈ£º 1ÈË
6 ÖÊÁϺͻú¾ßÅäÖÃ
6.1ÖÊÁÏÅäÖãº
6.1.1 C30»ìÄýÍÁ£ºµ¥ÁªÃ¿Ì×0.2·½¡¢Ë«ÁªÃ¿Ì×0.33·½¡£
6.2.2 ¸Ö½î£ºµ¥ÁªÃ¿Ì×14kg¡¢Ë«ÁªÃ¿Ì×20kg¡£
6.2.2·Àˮɰ½¬£º·â¶Â¹ÜÍ·Óë¾®±Ú¿Õ϶Óã¬Ã¿Ì×¾®0.016·½¡£
6.2ÕÉÁ¿ÒÇÆ÷ÅäÖÃ
6.2.1´¹Çò£º1¸ö
6.2.2Ë®×¼ÒÇ£º1̨
6.2.3С¸Ö¸Ö³ß£º1°Ñ
6.3Ê©¹¤»ú¾ßÅäÖÃ
6.3.1µçº»£º1̨
6.3.2Õñ¶¯°ô£º1̨
6.3.3Ëæ³µµõ£º1Á¾
7 ÖÊÁ¿¿ØÖÆ
7.1Ô¤ÖÆÊÕË®¾®Ê©¹¤ÖÊÁ¿×ñÊØ¡¶¸øË®ÅÅË®¹ÜµÀ¹¤³ÌÊ©¹¤¼°ÑéÊչ淶¡·£¨GB 50268-2008£©¡¢¡¶»ìÄýÍÁ½á¹¹¹¤³ÌÊ©¹¤¹æ·¶¡·£¨GB50666-2011£©¡¢¡¶»ìÄýÍÁ½á¹¹¹¤³ÌÊ©¹¤ÖÊÁ¿ÑéÊչ淶¡·£¨GB50204-2015)¡£
7.2Ô¤ÖÆÊÕË®¾®Ç¿¶È¡¢³ß´çÆ«²îÓ¦Çкϻ®¶¨¡£
7.3»ìÄýÍÁÕñµ·ÃÜʵ£¬ÍâòÎÞÂéÃæ¡¢·äÎÑ¡£
7.4Ô¤Áô¿×³ß´ç¡¢Î»ÖÃÒª¶¨Î»×¼È·£¬±ãÓÚ×°Öá£
7.5Ö÷Òª¿ØÖƲÎÊý
7.5.1»ìÄýÍÁÇ¿¶ÈµÖ´ïC30£¬¿¹ÉøÆ·¼¶P6£»
7.5.2¾®¿ò×°Öúó¾®Éî¶È¡Ý1000mm£»
7.5.3¾®ÊÒ½ØÃæ³ß´ç£º¡À10mm¡£
8 Äþ¾²ÓëÇé¿ö±£»¤
8.1ÊÕË®¾®¸Ö½îÖÆ×÷¡¢Ä£°åÖ§»¤¡¢»ìÄýÍÁ½½ÖþÀú³ÌÖÐӦ׼ȷÅå´÷Äþ¾²·À»¤ÓÃÆ·£¬±ÜÃⱬ·¢»úеÉ˺¦¡¢´¥µçµÈÄþ¾²Ê¹ʡ£
8.2ÊÕË®¾®ÔËÊä¡¢Æðµõǰ£¬Ó¦¼ì²é¸ÖË¿Éþ¡¢»úеÐÔÄܵÈÊÇ·ñ¿É¿¿£¬µõ×°Àú³ÌÖУ¬×¨ÈËÖ¸»Ó£¬µõ±ÛÏÂÑϽûÕ¾ÈË¡£
8.3Ê©¹¤ËùÓÃÖÊÁϱØÐë°´¶¨¶î׼ȷÅÌË㣬ÒÔÃâÔì³ÉÀ˷ѺÍÎÛȾ£¬¹ØÓÚÊ£Óàɰ½¬µÈÖÊÁÏ£¬±ØÐë°´»®¶¨Í¶·ÅÖ¸¶¨ËùÔÚ£¬ÑϽûËæÒâÅׯú¡£
8.4ÊÕË®¾®Ê©¹¤Íê³É£¬¾®¿ÚÓ¦¿É¿¿¹Ø±Õ£¬ÒÔÃâÒýÆðÄþ¾²Ê¹ʡ£
8.5¶Ô±¬·¢ÔëÒô¡¢Õ𶯵ÄÊ©¹¤»úе£¨¾ß£©£¬½ÓÄÉÓÐЧµÄ¿ØÖƲ½·¥£¬¼õÇáÔëÒôÈÅÃñ£¬²¢ÇÒ²»Ó¦°²ÅÅÔÚÒ¹¼äÊ©¹¤¡£
9 Ð§ÒæÆÊÎö
9.1½ÓÄÉÔ¤ÖÆ»ìÄýÍÁÊÕË®¾®È¡´úʵÐÄÕ³ÍÁשÆöÖþÊÕË®¾®£¬¼ÈÇкϹú¼Ò½ûÏÞʵÐÄÕ³ÍÁשÕþ²ß£¬ÓÖÊ©¹¤¼ò±ã£¬¾®ÊÒÔ½·¢Àι̡¢ÃÀ¹Û£¬ÔÚδÀ´Ò»¶¨³¹µ×Ìæ´úʵÐÄÕ³ÍÁש£¬Éú³¤Ç°¾°¼«ÆäÁÉÀ«£¬ÊµÊ±Ñо¿ÓëÍÆ¹ã£¬Ò»¶¨ÄÜ×ßµ½ÐÐҵǰÁУ¬ÎªÆóÒµ´øÀ´¿É¹ÛµÄ¾¼ÃÐ§Òæ¡£
9.2½ÓÄÉÔ¤ÖÆ»ìÄýÍÁÊÕË®¾®£¬¹¤³§ÅúÁ¿Á÷Ë®ÏßÉú²ú£¬Ä£¾ßµÈ̯Ïú´ÎÊý¶à£¬ÖÊÁÏÀË·ÑÉÙ£¬Ö±½Ó±¾Ç®ÓëשÆö»ù±¾³Öƽ£¬¿ÉÊÇ£¬×°ÖÃËٶȿ졢ÕûÌåÐԺã¬×°Öúó¿ÉÒÔÖ±½Ó»ØÌ´ó´óÌá¸ßÊ©¹¤¹¤ÆÚ£¬ÄÜÌá¸ß¹¤Ð§100£¥ÒÔÉÏ£¬¼ä½Ó¾¼ÃÐ§ÒæÃ÷ÏÔ¡£

ÁªÏµµç»°£º029-87859000 Óʱࣺ710054
µØµã£ºÖйúÎ÷°²»·³ÇÄÏ·ÖжÎ20ºÅ

ɹ«Íø°²±¸ 61010302000696ºÅ